Közterületi Gépjármű Parkolás Szabályai Magyarországon

A gépjárművel történő parkolás során számtalan szabályt kell betartanunk, így természetesen könnyű is hibázni. A közterületi parkolás kérdése napjainkra húsbavágó problémává vált. Mikor minősül közterületnek, mikor magánterületnek az ingatlan előtti rész, és milyen szabályozásra van joga az önkormányzatoknak?

A KRESZ a várakozás szabályairól úgy rendelkezik, miszerint tilos várakozni ott, ahol a jármű az út menti ingatlanra való behajtást, vagy az onnan történő kihajtást - az ingatlannal rendelkezni jogosult hozzájárulása nélkül - akadályozza. Fel is sorolja azon eseteket, ahol még a rövid várakozás sem megengedett (és táblával jelölik). Sőt, a törvény akkurátusan még azt is felsorolja, egyirányú forgalmi úton az úttest bal szélén akkor szabad megállni, ha a jármű mellett az úttest jobb széléig mérve legalább 5,5 méter szélességű hely marad.

Fontos kiemelni, hogy az úttest és a ház közötti rész minden esetben közterületnek számít, a kapubejáró kivételével természetesen. Ez azt jelenti, hogy nincs több jogunk hozzá, mint a többi állampolgárnak. A vonatkozó szabályozásról jogászt kérdeztünk, aki elárulta, hogy a törvény szerint tilos a közúton olyan tárgyat elhelyezni, amely a közlekedés biztonságát veszélyezteti, vagy a közlekedést akadályozza. A tulajdonos jogilag csak a kapubejáró szabadon tartását követelheti meg a KRESZ alapján. Minden egyéb akadályozás a ház előtt jogellenes.

A ház előtti terület önkormányzati tulajdon, így bármilyen állandó tárgy elhelyezése közterület-használati hozzájáruláshoz kötött, tehát az önkormányzat engedélye kell hozzá - hangsúlyozta. Ugyanakkor a jelzett terület rendben tartása a ház tulajdonosának feladata, de a gyönyörűen karbantartott füvünk megóvása sem elég indok arra, hogy idegen járművek parkolását lehetetlenítsük el.

Parkolási szabályok

Járdán Parkolás Szabályai

Számtalan olyan helyzet, közlekedési szituáció van, amikor a leglogikusabb megoldásnak az tűnik, hogyha gépjárművünkkel részben vagy egészben a járdán állunk meg. A KRESZ értelmében járdának minősül az útnak a gyalogosok közlekedésére szolgáló - az úttesttől szintkülönbséggel, kiemelt szegéllyel, vagy más látható módon elhatárolt - része. A járdán történő parkolásnak pedig speciális szabályai vannak.

Kárbejelentés Aegon biztosítónál

A KRESZ alapvetően nem rendelkezik sem arról, hogy mi minősül zöldfelületnek, sem arról, hogy megengedett vagy tiltott az ott történő parkolás. A KRESZ azt azonban kimondja, hogy járművel megállni főszabály szerint az úttest menetirány szerinti jobb szélén, azzal párhuzamosan, egy sorban szabad. Alapvetően tehát a KRESZ úgy rendelkezik, hogy járművel parkolni az úttesten szabad, nem pedig a mellette lévő füves vagy földes területen.

A fentieken túlmenően azonban a legtöbb önkormányzat is kialakította a zöldfelületeken történő parkolások megakadályozására irányuló eszköztárát. Általában az erre vonatkozó szabályokat a közösségi együttélés szabályairól szóló rendeletek tartalmazzák. A zöldfelületeken történő parkolás miatt tehát az egyes önkormányzatok saját rendeleteik alapján is kiszabhatnak büntetéseket. Függetlenül tehát attól, hogy a gépjárművezető hol lakik, járt-e már valaha életében azon a környéken, ahol leparkolt, minden esetben az adott önkormányzat rendelete alapján lehet megítélni, hogy a megállásért büntethetnek-e a közterület-felügyelők. Ezekben az esetekben jogi szempontból igen jelentős lehet az, hogy az adott önkormányzat rendelete pontosan miképp fogalmazza meg a szabályszegés tényállását, illetve előírja-e az üzembentartó objektív felelősségét.

Zöldfelületen parkolás

Parkolási Rendeletek és Jogszabályok

A témát tovább szépíti a magyar jogszabályi rendszer: bizonyos tárgykörökben - és a parkolás, közterületen várakozás tipikusan ilyen - az önkormányzatok rendeleti szinten jogszabályt alkothatnak. Első lépésként tehát az eset helyszíne szerinti önkormányzati rendeleteket kell megnézni. Ebből a szempontból különbség lehet aközött, hogy ingyenes parkolóhelyről, vagy egyéb út menti területről (közút) van szó.

Az önkormányzati rendeletektől függetlenül, ha közúti közlekedési szolgáltatáshoz használt gépjárműről van szó (pl. taxi), azokra külön szabályok vonatkozhatnak. Egységes szabályozás a tárolás időtartamára tehát mondhatni nincsen, az egyes önkormányzatok eltérően dönthetnek akár úgy is, hogy településrészek szerint érintik a megállást és várakozást - esetleg a tárolást is.

Ha ingyenes helyen várakozunk - akár az út mellett, ahol nem tiltott a várakozás, akár ingyenes parkolóhelyen -, a várakozás megkezdésének időpontját napra pontosan meg kell mondani ahhoz, hogy annak hosszát is meghatározzuk.

A DEKRA kárbejelentő nyomtatványa

Összegezve tehát, ellenőrizni kell az önkormányzati rendeletet, és az adott várakozási (tárolási) helyszín közlekedési jelzőtábláit, ahol korlátozhatják a várakozás hosszát. Cikkünk írásakor egyebekben nem írja elő egységesen jogszabály a várakozás időbeni tartamát és hogy mikortól lesz a gépjárművel várakozás már tárolás.

Érdemes békés megoldást keresni, beszélni az illetővel, hogy a helyzetet valahogy orvosolni kell, mert kényelmetlenséget okoz nekünk. A Magyar Közlöny 98. számában kihirdetett törvénymódosítás alapján a Közúti közlekedésről szóló 1988. évi I. törvény is előírja, hogy a 3,5 tonna megengedett legnagyobb össztömeg feletti járművek (tehergépkocsi, vontató, pótkocsi, autóbusz) település belterületén való tárolásához hatósági bizonyítványra van szükség.

A tárolásra való alkalmasságot a hatósági bizonyítvány kiadásával változatlanul a települési önkormányzat jegyzője állapítja meg. Az előzetes egyeztetés nélkül kihirdetett módosítás szerint a 3,5 tonna megengedett legnagyobb össztömeg feletti tehergépjármű, vontató, pótkocsi, autóbusz belterületi tárolásához továbbra is a jegyző által kiállított hatósági bizonyítványra van szükség. A kérelem beadására a jármű üzembentartója kötelezett.

Újdonság az, hogy amennyiben a hatósági bizonyítvány kiadását követően beálló változások miatt a belterületi ingatlan már nem alkalmas járművek tárolására, a jegyző kötelezi az üzembentartót az ingatlanon történő jármű tárolásának megszüntetésére. A közúti közlekedésről szóló 1988. évi I. törvényben megjelenő új szabályok 2021. június 13-tól hatályosak.

A korábbi szabály, miszerint tíznél több jármű üzemeltetése esetén az üzembentartó köteles a járműveket telephelyen tárolni, továbbra is érvényben van. A közút kezelője kivételesen indokolt esetben - olyan helyen, ahol a jármű a közúti forgalmat nem zavarja - hozzájárulhat a közúti közlekedési szolgáltatáshoz használt jármű közúton vagy közterületen való tárolásához (261/2011-es kormányrendelet; 13. § 3. bek.). A legfeljebb 3500 kg legnagyobb megengedett össztömegű gépkocsi a közúton vagy más közterületen is tárolható. (89/1988-as kormányrendelet 7. § 3. bek.).

A Járműmérnöki Képzés részletei

Gyakori tévhit, hogy a lejárt műszaki engedéllyel rendelkező gépkocsikat nyugodtan az utcán lehet hagyni, ha azzal KRESZ-szabályt nem sértve várakozunk. Erről a KRESZ - 1/1975. (II.5.) KPM-BM együttes rendelet - rendelkezik, amely az 59. § 3. pontjában kimondja, hogy „azt a hatósági jelzéssel nem rendelkező járművet, amely a közúti forgalomban csak ilyen jelzéssel vehet részt, főútvonalon tilos, mellékútvonalon - közterület-használati engedély nélkül - legfeljebb 10 napig szabad tárolni. Az úton e rendelkezések megszegésével tárolt járművet a rendőrség, a közterület-felügyelet, a közút kezelője - a tulajdonos költségére - eltávolíthatja.”

A közterület-felügyelet tehát nem köteles ezeket a gépjárműveket eltávolítani a közterületről, ám ha megteszi - például lakossági bejelentés nyomán -, az mindig a tulajdonos költségére történik. Ebbe beletartozik a jármű elszállításának, valamint tárolásának költsége is. Ha az eltávolítástól számított hat hónapon belül a gépjármű tulajdonosa vagy üzemben tartója nem jelentkezik, az autó a közterület-felügyelet tulajdonába kerül.

Új Szabályozás a Parkolóhelyek Kialakítására

2025. január 1. napjától a településrendezési és építési követelmények alapszabályzata, a 280/2024. (IX. 30.) Kormányrendelet (rövid nevén: TÉKA) szabályozza a parkolóhelyek kialakítására vonatkozó alapvető előírásokat. A parkolóhelyek kialakítására vonatkozó egységes szabályozást azonban a jövőben a TÉKA rendelkezései között kereshetjük.

A TÉKA rendelkezéseinek elvi alapját a 2023. december 22. napjától hatályos, a magyar építészetről szóló 2023. évi C. törvény (Méptv.) képezi. A Méptv. a legalább 5000 fő népességgel rendelkező települések, valamint - népességszámtól függetlenül - a fővárosi kerületek, a járásszékhely városok, a budapesti agglomeráció és a Balaton kiemelt üdülőkörzet területén fekvő települések, valamint a világörökségi területen lévő települések helyi építési szabályzatára vonatkozóan ír elő kötelező szabályozási keretfeltételeket.

Elvi alapként jelenik meg, hogy a telken belüli parkolást - akár felszíni, akár parkolóházi megoldás alkalmazásával - előnyben kell részesíteni a közterületi parkolással szemben, természetesen a helyi sajátosságok kötelező figyelembe vétele mellett.

Jelentős változás, hogy a kötelezően kialakítandó parkolóhelyek számának önkormányzati megállapítása az eddigi „minimum kialakítandó” elv alkalmazása helyett, a továbbiakban a rendeltetési módok szerinti differenciálás elve szerint kerülhet megállapításra a TÉKA alapján, a helyi építési szabályzatokban.

Lakosságszámtól és elhelyezkedéstől függetlenül valamennyi helyi önkormányzatra vonatkozó törvényi előírás, hogy a parkolók kialakításának rendjét a helyi építési szabályzatban az akadálymentesítési előírások figyelembevételével szükséges a helyi önkormányzatoknak megállapítania.

A korábban megvalósult épületek tetőterének beépítése esetén a beépítésből eredő többlet gépjármű elhelyezése az érintett épület telekhatárától mért legfeljebb 1000 méteren belül más telken, parkolóban, parkolóházban vagy a közterület közlekedésre szánt területe egy részének felhasználásával is biztosítható, továbbá a helyi önkormányzat parkolást szabályozó rendelete a parkolóhely pénzbeli megváltásának lehetőségét sem tilthatja meg.

A TÉKA az indokolásában megfogalmazottak szerint, a differenciálás elvének alkalmazásával racionalizálja a parkolóhelyek elhelyezésének szabályait, amelynek köszönhetően a közlekedési és településhálózati adottságokhoz igazodó számú parkolóhelyet kell csak kialakítani.

A településrendezési terv egyeztetési eljárása során jelentkező eltérési igény esetén az állami főépítész hozzájárulását adhatja az eltéréshez, mégpedig azzal, hogy kiállítja az eltérési igénnyel megegyező záró szakmai véleményét. A főépítész ezen szakvéleményét azonban nem szubjektív értékelése szerint, hanem abban az esetben adhatja meg, ha az eltérési igény megfelel a TÉKA 3.§ (4) bekezdésében foglalt feltételeknek.

Egyedi, építési engedélyhez, egyszerű bejelentéshez vagy örökségvédelmi engedélyhez kötött építési tevékenységek esetén a rendeletben meghatározott feltételek fennállása mellett kérelemre, az eltérést meg kell adni. Az indokoltságról az állami főépítész, az Országos Építészeti Tervtanács vagy a területi építészeti tervtanács dönt hatáskörük függvényében. Az eltérésre vonatkozó kérelmet településrendezési munkarésszel vagy településrendezési szakági munkarésszel és indokolással kell alátámasztani.

Az eltérés indokoltságát megalapozhatja, ha a kialakult állapot alapján új gépjármű várakozóhely csak zöldfelület igénybevételével, illetve mű- vagy helyi emlék sérelmével lenne kialakítható, továbbá ha az érintett telek domborzati adottságai miatt gépjárművel egyébként sem közelíthető meg, vagy az ingatlan közösségi közlekedési ellátottsága alapján a gépjármű várakozóhelyek száma csökkenthető.

A nagyvárosias és kisvárosias, valamint kertvárosias lakóterületeken, továbbá településközponti vegyes területen, intézményi vegyes területen, hétvégi házas üdülőterületen nem helyezhető el parkolóterület és gépjárműtároló a 3,5 tonna önsúlynál nehezebb gépjárművek és az ilyeneket szállító járművek számára. A kertvárosias és falusias lakóterületeken, hétvégi házas üdülőterületen ezen felül parkolóház sem helyezhető el. Parkolóház az intézményi vegyes területen elhelyezhető önállóan vagy vegyesen.

Bár a TÉKA is határoz meg minimum számokat a kötelezően kialakítandó parkolóhelyekre vonatkozóan, ezt differenciáltan, a létesítmények rendeltetése, funkciója alapján határozza meg, a 4. számú mellékletében. Összehasonlításképp megjegyezzük, hogy korábban lakásonként a helyi építési szabályzatban meghatározott számú személygépkocsi elhelyezését kellett biztosítani, azzal, hogy a helyi építési szabályzat kötelezően legfeljebb egy személygépkocsi elhelyezését írhatta elő.

A szálláshelyek szintén jól járnak a módosítással, ugyanis korábban minden vendégszoba után kellett várakozóhelyet létesíteni, nem minden második vendégszoba után. A kereskedelmi egységek tekintetében enyhébb lett az előírás, korábban ugyanis minden megkezdett 10 m2 után kellett 1 várakozóhelyet létesíteni, majd 100 m2 felett 20 m2-enként egyet. Nem kell parkolóhelyet biztosítani ugyanakkor számos kereskedelmi, szolgáltató önálló rendeltetési egység esetén, így például ha az gyalogos alul- vagy felüljáróban, önálló parkolóház földszintjén, vagy közforgalmú személyközlekedés állomásának utasforgalmat szolgáló épületében helyezkedik el.

Meglévő építmények bővítése, átalakítása, rendeltetésük módosítása esetében az ebből eredő többlet gépjármű elhelyezéséről kell gondoskodni, a meglévők megtartása mellett. Korábban az OTÉK a várakozóhelyekre vonatkozóan írta elő a mozgáskorlátozottak számára is alkalmas parkolás lehetőségének biztosítását, ahol minden megkezdett 50 db várakozóhelyből legalább egyet a mozgásukban korlátozottak részére kellett kialakítani, amelyekből legfeljebb négy volt közvetlenül egymás mellé helyezhető. A TÉKA a parkolóházak és a közhasználatú területek esetén nyújt csak ezirányú szabályozást.

A TÉKA alapján a parkolóházakban a mozgásukban korlátozottak részére kialakított várakozóhelyeknek akadálymentes elérési útvonalon elérhetőnek kell lenniük.

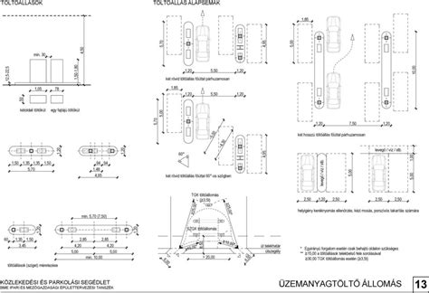
A személygépjármű várakozóhelyek tervezése, méretezése kapcsán a TÉKA 2. számú mellékletét érdemes áttanulmányozni a jogszabály törzsszövege mellett. Várakozóhelyenként minimum 4,8 × 1,8 méter befoglaló mérettel szükséges számolni, mozgáskorlátozott parkolóhely esetében 5,4 × 3,6 méterrel. Egy gépjármű tárolására kialakított hely (gépjárműtároló) mérete azonban 2,8 × 5,5 m (ez korábban 2,7 × 5,5 volt). Lehetőség van - közforgalom számára nem megnyitott gépjárműtárolókban - az álláshelyeknél legfeljebb 20%-ig kisebb mérettel számolni a kisméretű gépjárművek számára (4,11 × 2,2 m).

Az elektromos töltőpontok vonatkozásában sok helyen felmerülhet fejlesztési kötelezettség, ugyanis ezen a területen némi szigorítás látszik. A kereskedelemről szóló törvény alapján napi fogyasztási cikket értékesítő üzleteknél kialakított várakozóhelyeknél minden megkezdett 100 újonnan létesített várakozóhelyből legalább négyet elektromosgépjármű- töltőponttal kell ellátni. Amennyiben 2025. január 1-én már meglévő várakozóhelyről beszélünk, úgy csak a 300 m2-nél nagyobb nettó alapterületű üzleteknél szükséges töltőpontot létesíteni, négy helyett csupán kettőt.

Akár új, vagy meglévő várakozóhelyről van szó, az elektromosgépjármű-töltőállomások 5 százalékának, de legalább egynek akadálymentesnek kell lennie. Fizetős várakozást biztosító hely esetén minden megkezdett 100 várakozóhelyből legalább négyet elektromosgépjármű-töltőponttal kell ellátni (a teljesítményszint tekintetében ugyanakkor nincs megkötés, vagyis lehet normál AC, de lehet gyors HPC töltő is), függetlenül attól, hogy új vagy meglévő létesítményről beszélünk. Korábban 100 várakozóhelyből kettőt kellett ilyen töltőponttal ellátni, így itt sok helyen beruházni lesz szükséges.

A TÉKA előírja, hogy lehetőség szerint a 10 gépjárműnél nagyobb befogadóképességű felszíni várakozóhelyet 1,50 méter széles, a lehető legnagyobb mértékben összefüggő zöldfelületbe telepített fasor kialakításával fásítani kell. Ettől - nem közterület esetén - akkor lehet eltekinteni, ha a megvalósítást a helyi adottságok kizárják.

Ezen felül külön figyelmet szükséges fordítani a parkolók árnyékolására is, amelynek érdekében minden megkezdett 6 db várakozóhely után 1 db nagy lombkoronájú fát szükséges telepíteni, vagy 4 db várakozóhely után 1 db közepes lombkoronájú környezettűrő, többször iskolázott lombos fát. Az árnyékolást biztosító fásítás helyett a rendelet alternatív megoldási lehetőséget kínál. Lehetőség van megújuló energia műtárgy elhelyezésével kiváltani az árnyékolást célzó fásítási kötelezettséget, de ezesetben a telken belül máshol kell fákat telepíteni, amelyek így már nem feltétlen nyújtanak majd árnyékot. Amennyiben ez a pótló fásítás sem megoldható a telek adottságai vagy biztonsági tényezők miatt, úgy az érintett települési önkormányzat által a telek 500 m-es környezetében kijelölt területen szükséges fásítást végezni.

Az elektromos autók elterjedésével egyre fontosabb az elektromos töltőpontok kiépítése.

Pénzért töltöttem villanyautót a Lidl-nél!

Parkolóhely Méretek a TÉKA szerint

A TÉKA 2. számú melléklete szerint a személygépjármű várakozóhelyek tervezésekor és méretezésekor az alábbiakat kell figyelembe venni:

Várakozóhely típusa Befoglaló méret
Szabványos várakozóhely 4,8 m x 1,8 m
Mozgáskorlátozott várakozóhely 5,4 m x 3,6 m
Gépjárműtároló 2,8 m x 5,5 m
Kisméretű gépjármű várakozóhely (nem közforgalmú tárolókban) 4,11 m x 2,2 m
Parkolóhely méretek

tags: #közterületi #gépjármű #parkolás #szabályai #Magyarország